ФСНБ ФЕР-2001 редакция 2014 года

Применение норм и расценок

Модератор: Модераторы




ФСНБ ФЕР-2001 редакция 2014 года

Сообщение dfy.irf Пн Дек 01, 2014 13:30

Версия ПК 8.0.0.30 база ФЕР-2001 в редакции 2014 года. Такая проблема, беру расценку из базы фер,например т05-01-003-50 Перевозка грузов I класса при загрузке вагона 3 т на расстояние до 50 км ,но весь сборник такой, вставляю ее в смету, ставлю объем и ничего не происходит. А все по тому, что вся стоимость на перевозку отнесена на ПЗ в столбце ЭММ стоит 0, а если смотреть по формуле итоговая ПЗ=СТмат+ЭММ+озп, а у нас там везде нули стоят. Думаю так не должно быть??? может еще у кого так?
Аватара пользователя
dfy.irf
Актив
Актив
 
Сообщения: 29
Зарегистрирован: Чт Июн 21, 2012 13:17
Откуда: Ульяновская обл.
Репутация: 1 (?)

Ваша реклама

google adsense
Группа компаний «СтройСофт»
Зарегистрирован: Чт Авг 22, 2002 11:06

Откуда: Москва

Re: ФСНБ ФЕР-2001 редакция 2014 года

Сообщение aivt Пн Дек 01, 2014 13:52

Типовой расчет обновить до 8.0.0.30
Аватара пользователя
 aivt
Уважаемый консультант
Уважаемый консультант
 
Сообщения: 1922
Зарегистрирован: Пн Фев 02, 2004 14:18
Откуда: Орловская обл.
Репутация: 20 (?)

Re: ФСНБ ФЕР-2001 редакция 2014 года

Сообщение expert69 Пн Дек 01, 2014 14:20

aivt писал(а):Типовой расчет обновить до 8.0.0.30



А где такой взять? )
Аватара пользователя
 expert69
Ветеран форума
Ветеран форума
 
Сообщения: 773
Зарегистрирован: Ср Сен 05, 2012 12:49
Откуда: Тверь
Репутация: 7 (?)

Re: ФСНБ ФЕР-2001 редакция 2014 года

Сообщение dfy.irf Пн Дек 01, 2014 16:00

Типовой расчет самый последний с сайта скачал все равно так, мне кажется не в нем дело!
Вложения
Примерр.jpg
Примерр.jpg (861.99 Кб) Просмотров: 14647
Аватара пользователя
dfy.irf
Актив
Актив
 
Сообщения: 29
Зарегистрирован: Чт Июн 21, 2012 13:17
Откуда: Ульяновская обл.
Репутация: 1 (?)

Re: ФСНБ ФЕР-2001 редакция 2014 года

Сообщение aivt Пн Дек 01, 2014 20:59

На моей машине эти сборники содержат цену перевозки в ЭММ.
Из ЭММ цена попадает в ПЗ. Установлены последние ФЕРы с сайта.
Может и вам тогда сборник нужно обновить - ФЕРы скачать с сайта и установить поверх.
Аватара пользователя
 aivt
Уважаемый консультант
Уважаемый консультант
 
Сообщения: 1922
Зарегистрирован: Пн Фев 02, 2004 14:18
Откуда: Орловская обл.
Репутация: 20 (?)

Re: ФСНБ ФЕР-2001 редакция 2014 года

Сообщение dfy.irf Вт Дек 02, 2014 8:25

Сейчас попробую, спасибо за совет! Кстати заметил, что дата последней модификации сборников фер 1.12.2014 значит исправили, хотя еще не устанавливал. На моей машине стоят феры от августа месяца точно помню.
Аватара пользователя
dfy.irf
Актив
Актив
 
Сообщения: 29
Зарегистрирован: Чт Июн 21, 2012 13:17
Откуда: Ульяновская обл.
Репутация: 1 (?)

Re: ФСНБ ФЕР-2001 редакция 2014 года

Сообщение dfy.irf Вт Дек 02, 2014 8:38

Установил! Исправили! Похвально, что так быстро среагировали!
Аватара пользователя
dfy.irf
Актив
Актив
 
Сообщения: 29
Зарегистрирован: Чт Июн 21, 2012 13:17
Откуда: Ульяновская обл.
Репутация: 1 (?)

Re: ФСНБ ФЕР-2001 редакция 2014 года

Сообщение dfy.irf Вт Дек 02, 2014 8:44

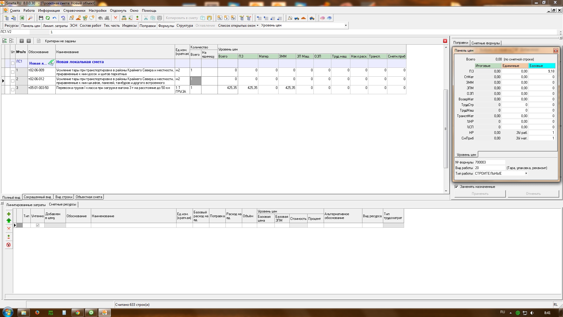
Рано радовался((((( Про тару упаковку и реквизит забыли поправить, такая же беда с этими сборниками!
Вложения
тара и упаковка.jpg
тара и упаковка.jpg (336.42 Кб) Просмотров: 14615
Аватара пользователя
dfy.irf
Актив
Актив
 
Сообщения: 29
Зарегистрирован: Чт Июн 21, 2012 13:17
Откуда: Ульяновская обл.
Репутация: 1 (?)

Re: ФСНБ ФЕР-2001 редакция 2014 года

Сообщение dfy.irf Ср Дек 03, 2014 9:49

Может я конечно чего то не понимаю, но думаю если я ставлю объем на расценку из сборника ФЕР то она должна считаться, а не нули показывать?!
А все по тому, что вся стоимость отнесена на ПЗ в столбце СТмат стоит 0, а если смотреть по формуле итоговая ПЗ=СТмат+ЭММ+озп, а у нас там везде нули стоят по этому и не считается!!! Конкретно в этом случае нужно отнести стоимость этой расценки не только на ПЗ, но тогда и на СТМат, что бы расценка считалась! Про надбавки в стоимости материалов в данном случае речь не веду.
Аватара пользователя
dfy.irf
Актив
Актив
 
Сообщения: 29
Зарегистрирован: Чт Июн 21, 2012 13:17
Откуда: Ульяновская обл.
Репутация: 1 (?)

Re: ФСНБ ФЕР-2001 редакция 2014 года

Сообщение dfy.irf Ср Дек 24, 2014 10:17

Здравствуйте! подскажите пожалуйста, есть ли какой документ где прописано на какую статью затрат относить стоимость при перевозке автомобилями по сборникам ФЕР?
Аватара пользователя
dfy.irf
Актив
Актив
 
Сообщения: 29
Зарегистрирован: Чт Июн 21, 2012 13:17
Откуда: Ульяновская обл.
Репутация: 1 (?)



Вернуться

Кто сейчас на конференции

Сейчас этот форум просматривают: нет зарегистрированных пользователей и гости: 0




© 1995-2019 Группа компаний «СтройСофт»